ABOUT
Wood
Concrete · Steel
REMODELING · INTERIOR
Master Plan · Research
URBAN
NEWS
Contact
ABOUT
Wood
Concrete · Steel
REMODELING · INTERIOR
Master Plan · Research
URBAN
NEWS
Contact

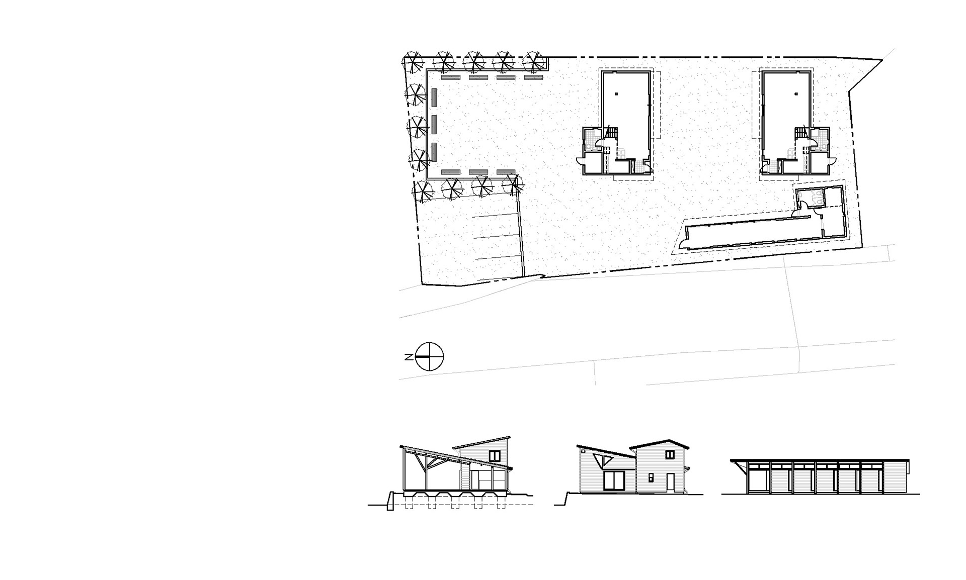
2007 양구 집짓기 작가공방

You may also like

전원주택 라이프 2019.04
2020
WOODPLANET 03 2016
2020
한겨레 ESC 살고싶은집 2014년 12월 18일
2020
2006 대한민국목조건축대전 준공부문 입선 한국관광공사 T2마당
2020
2006 양구 집짓기 Renovation
2020
WOODPLANET 05 2013
2020
한국목재신문 2012년 01월 01일 287호
2020
나무신문 2013년 04월 08일
2020
한국 캐나다 수교 50주년 기념 특별전시 캐나다 우드 & 건축전
2020
하우스스타일 HS HOUSE & 6X6 HOUSE
2020
↑Back to Top