ABOUT
Wood
Concrete · Steel
REMODELING · INTERIOR
Master Plan · Research
URBAN
NEWS
Contact
ABOUT
Wood
Concrete · Steel
REMODELING · INTERIOR
Master Plan · Research
URBAN
NEWS
Contact

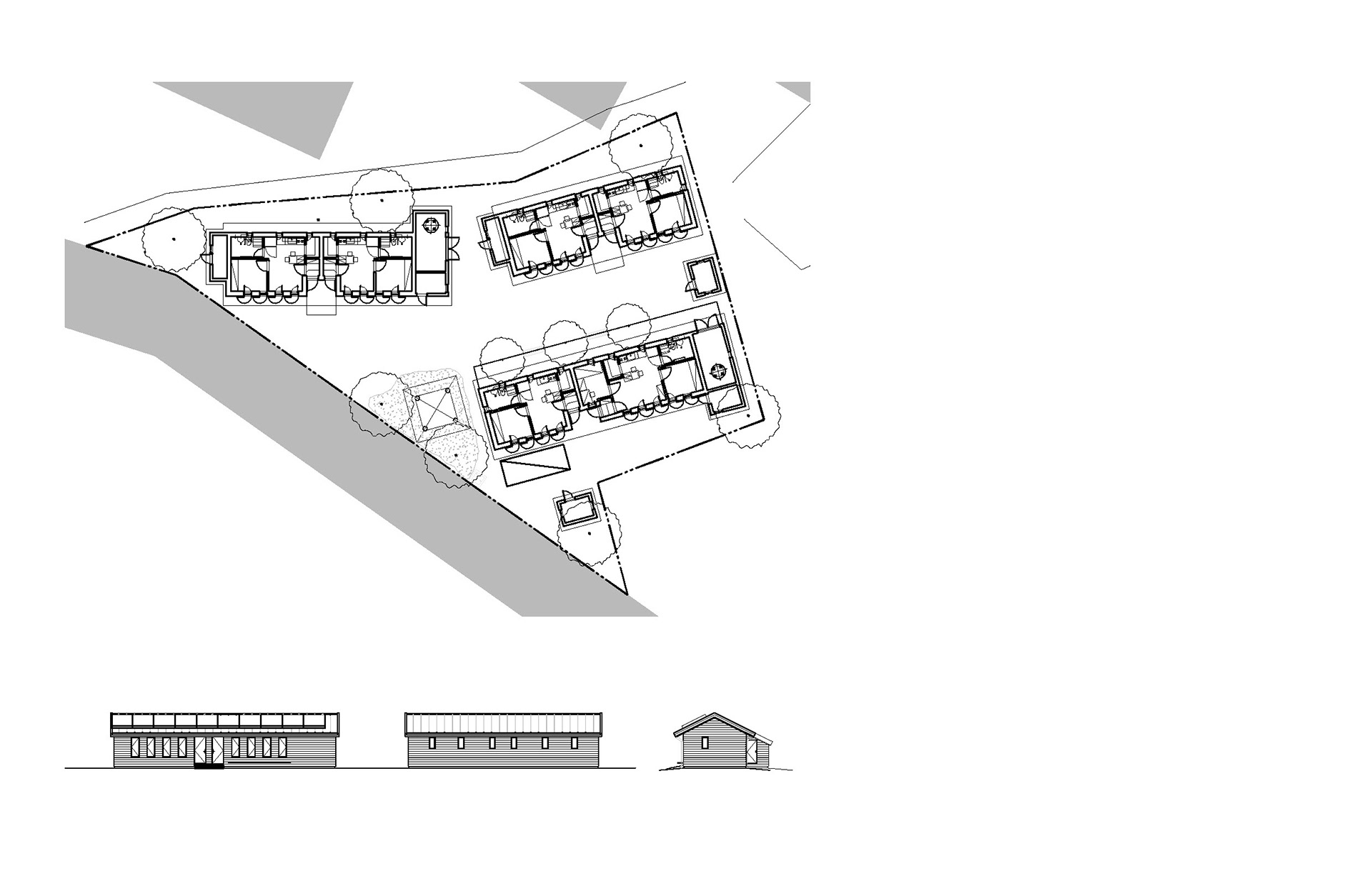
2009 인제 집짓기 노인대안홈

You may also like

와이드AR 2020년 3-4월호 나의 건축 인생작 여목헌
2020
2019년 제 1회 한국주거학회 디자인 작품전
2019
나무신문 2011년 11월 14일
2020
EBS1 건축탐구 집_향여재
2020
나무신문 2013년 04월 15일
2020
월간건축세계 2015년 1월
2020
중앙경제_여목헌
2020
한국목재신문 2012년 01월 01일 287호
2020
건축디자인신문 에이앤뉴스 2012년 7월 7일 제24호
2020
나무신문 2013년 04월 08일
2020
↑Back to Top